『しだれ桜と暮らす3世代の家』(広島県三次市・木造在来工法2階建)の現場から工事写真が送られてきました。
屋根板金がキレイに葺かれています。破風(はふ)といわれる2階切り妻屋根の端部の板金も打合せどおりに3分割で施工されています。
エントランスホールのトップライト見上げ。傾斜した天井には石膏ボードが貼られています。


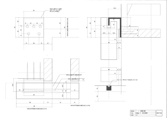
工事の進行に合わせて、実施設計図では足りない部分の図面やスケッチを作成して送っています。
【設計事務所アーキプレイスでの屋根にガルバリウム鋼板を使用した事例】
>>囲んだテラスに開いた2階リビングの家、それぞれの時間を大切に犬猫と暮らすコートハウス、桜並木と暮らす家、緑あふれるアトリエのある家など




















